Wszystkie średnice tego produktu w dużych ilościach są dostępne w magazynie.
Skontaktuj się z naszym konsultantem, aby dowiedzieć się o cenie i złożyć zamówienie.
Promocja!
Zwężka kołnierzowa DN150x100
Ten produkt posiada: Atest higieniczny PZH
Krajowa deklaracja właściwości użytkowych KDWU
Certyfikat ISO 9001:2015 
1. Cechy
-
Zakres średnic DN 50 - 500 mm.
-
Wykonany z żeliwa sferoidalnego EN-GJS-500-7 z farbą proszkowa epoksydowa grubośc min. 250um
2. Dane techniczne
-
Maksymalne ciśnienie robocze: 48 bar
-
Przyłącze kołnierzowe zgodnie z EN 1092-2:
-
-
Dla średnic DN 150 i mniejszych - kołnierze owiercone wg EN 1092-2 o ciśnieniu PN10/16
-
Dla średnic DN 200 i więcej - kołnierze owiercone wg EN 1092-2 o ciśnieniu PN10
-
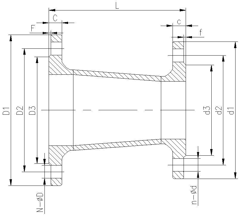
3. Wymiary
|
DN |
dn |
L |
D1 |
D2 |
D3 |
C |
F |
N-D |
d1 |
d2 |
d3 |
c |
f |
n-d |
|
80 |
50 |
200 |
200 |
160 |
132 |
19 |
3 |
8-19 |
165 |
125 |
102 |
19 |
3 |
4-19 |
|
100 |
50 |
200 |
220 |
180 |
156 |
19 |
3 |
8-19 |
165 |
125 |
102 |
19 |
3 |
4-19 |
|
80 |
200 |
220 |
180 |
156 |
19 |
3 |
8-19 |
200 |
160 |
132 |
19 |
3 |
8-19 |
|
|
150 |
50 |
300 |
285 |
240 |
211 |
19 |
3 |
8-23 |
165 |
125 |
102 |
19 |
3 |
4-19 |
|
80 |
400 |
285 |
240 |
211 |
19 |
3 |
8-23 |
200 |
160 |
132 |
19 |
3 |
8-19 |
|
|
100 |
300 |
285 |
240 |
211 |
19 |
3 |
8-23 |
220 |
180 |
156 |
19 |
3 |
8-19 |
|
|
200 |
80 |
600 |
340 |
295 |
266 |
20 |
3 |
8-23 |
200 |
160 |
132 |
19 |
3 |
8-19 |
|
100 |
600 |
340 |
295 |
266 |
20 |
3 |
8-23 |
220 |
180 |
156 |
19 |
3 |
8-19 |
|
|
150 |
300 |
340 |
295 |
266 |
20 |
3 |
8-23 |
285 |
240 |
211 |
19 |
3 |
8-23 |
|
|
250 |
100 |
600 |
400 |
350 |
319 |
22 |
3 |
12-23 |
220 |
180 |
156 |
19 |
3 |
8-19 |
|
150 |
600 |
400 |
350 |
319 |
22 |
3 |
12-23 |
285 |
240 |
211 |
19 |
3 |
8-23 |
|
|
200 |
300 |
400 |
350 |
319 |
22 |
3 |
12-23 |
340 |
295 |
266 |
20 |
3 |
8-23 |
|
|
300 |
100 |
600 |
455 |
400 |
370 |
24,5 |
4 |
12-23 |
220 |
180 |
156 |
19 |
3 |
8-19 |
|
150 |
600 |
455 |
400 |
370 |
24,5 |
4 |
12-23 |
285 |
240 |
211 |
19 |
3 |
8-23 |
|
|
200 |
600 |
455 |
400 |
370 |
24,5 |
4 |
12-23 |
340 |
295 |
266 |
20 |
3 |
8-23 |
|
|
250 |
300 |
455 |
400 |
370 |
24,5 |
4 |
12-23 |
400 |
350 |
319 |
22 |
3 |
12-23 |
|
|
400 |
100 |
800 |
565 |
515 |
480 |
24,5 |
4 |
16-28 |
220 |
180 |
156 |
19 |
3 |
8-19 |
|
150 |
750 |
565 |
515 |
480 |
24,5 |
4 |
16-28 |
285 |
240 |
211 |
19 |
3 |
8-23 |
|
|
200 |
600 |
565 |
515 |
480 |
24,5 |
4 |
16-28 |
340 |
295 |
266 |
20 |
3 |
8-23 |
|
|
250 |
600 |
565 |
515 |
480 |
24,5 |
4 |
16-28 |
400 |
350 |
319 |
22 |
3 |
12-23 |
|
|
300 |
600 |
565 |
515 |
480 |
24,5 |
4 |
16-28 |
455 |
400 |
370 |
24,5 |
4 |
12-23 |
|
|
500 |
100 |
950 |
670 |
620 |
582 |
26,5 |
4 |
20-28 |
220 |
180 |
156 |
19 |
3 |
8-19 |
|
150 |
900 |
670 |
620 |
582 |
26,5 |
4 |
20-28 |
285 |
240 |
211 |
19 |
3 |
8-23 |
|
|
200 |
800 |
670 |
620 |
582 |
26,5 |
4 |
20-28 |
340 |
295 |
266 |
20 |
3 |
8-23 |
|
|
250 |
700 |
670 |
620 |
582 |
26,5 |
4 |
20-28 |
400 |
350 |
319 |
22 |
3 |
12-23 |
|
|
300 |
600 |
670 |
620 |
582 |
26,5 |
4 |
20-28 |
455 |
400 |
370 |
24,5 |
4 |
12-23 |
|
|
400 |
600 |
670 |
620 |
582 |
26,5 |
4 |
20-28 |
565 |
515 |
480 |
24,5 |
4 |
16-28 |
Producent zastrzega sobie prawo do wprowadzania zmian konstrukcyjnych produktu niepogarszających jego parametrów technologicznych i użytkowych.
Zwężka kołnierzowa dwukołnierzowa wykonana z żeliwa sferoidalnego EN-GJS-500-7 z farbą proszkowa epoksydowa grubość min. 250um. Redukcja żeliwna kołnierzowa służy do łączenia ze sobą dwóch kołnierzy o różnych średnicach. Zwężka dwukołnierzowa żeliwna jest rodzajem armatury Wod-Kan. Zwężka kołnierzowa (redukcja) SFERO GGG50 jest stosowana w rurociągach przeciwpożarowych, kanalizacyjnych i wody pitnej. Kształtka FFR GGG kołnierzowa.
Przykładamy szczególną wagę do tego, aby w naszym asortymencie znajdowały się trwałe, wysokiej jakości produkty. Dlatego oferujemy zwężkę kołnierzową DN150x100, która stanowi nieodłączny element sprawnej armatury przemysłowej. Wyrób wykonano z solidnego żeliwa sferoidalnego będącego gwarancją trwałości instalacji i jej odporności na czynniki zewnętrzne. Nasza zwężka kołnierzowa zapewnia także doskonałą szczelność, dzięki czemu jest powszechnie wykorzystywana w rurociągach pożarowych, kanalizacyjnych i wody pitnej. Zapraszamy do zapoznania się z ofertą!
Materiał najwyższej jakości
Zwężka kołnierzowa DN150x100 została wyprodukowana z żeliwa sferoidalnego, chętnie stosowanego w instalacjach przemysłowych ze względu na cenne właściwości. Materiał wykonania zapewnia wytrzymałość mechaniczną całej konstrukcji, niwelując ryzyko pęknięcia, awarii i utraty szczelności. Wykazuje się także odpornością na wysokie ciśnienie, obciążenie i chwiejność podłoża, dzięki czemu zwężka kołnierzowa doskonale sprawdza się w zmiennych, ekstremalnych warunkach. Cechy te czynią z produktu bezpieczny i profesjonalny wybór, który docenią zarówno fachowcy, jak i zwykli użytkownicy instalacji.
Zwężka kołnierzowa - precyzja i wytrzymałość
Nasze produkty wyróżniają się solidnym i precyzyjnym wykonaniem, co czyni z nich funkcjonalny komponent nowoczesnej sieci wodociągowej. Zwężka kołnierzowa DN150x100 posiada niezbędne atesty stanowiące gwarancję tego, że produkt nie jest szkodliwy dla zdrowia i nadaje się do transportu wody pitnej. Precyzyjne wymiary umożliwiają dokładne i nieskomplikowane zamontowanie wyrobu w wyznaczonym miejscu. Dzięki temu nasza zwężka kołnierzowa jest produktem nieocenionym w pracach budowlanych i remontowych, których celem jest usprawnienie działającej instalacji.
